大和市西鶴間第24 1号棟
新築一戸建て
閲覧済み
西鶴間2丁目 鶴間駅 徒歩 11分 4380万円
- おすすめ
- NEW
- 価格変更
- 会員限定
所在地
神奈川県大和市西鶴間2丁目交通
小田急江ノ島線 鶴間駅 徒歩 11分小田急江ノ島線 南林間駅 徒歩 12分
間取り
2LDK+S(納戸)築年月
2026年06月予定建物面積
74.51㎡土地面積
93.59㎡現地見学会開催スケジュール
開催日
2026年03月26日〜2027年03月26日時間
10:00〜17:00受付場所
-備考
現地案内会 公開中 事前に必ず予約してください
- 間取図/区画図
- 【小田急線「鶴間」駅徒歩11分!耐震等級3+住宅性能評価ダブル取得】カースペース並列2台可全室収納スペースあり利便施設が身近に揃う暮らしやすい住環境

- その他
- 1号棟
西鶴間2丁目 鶴間駅 徒歩 11分 4380万円
所在地
神奈川県大和市西鶴間2丁目交通
小田急江ノ島線 鶴間駅 徒歩 11分小田急江ノ島線 南林間駅 徒歩 12分
間取り
2LDK+S(納戸)築年月
2026年06月予定建物面積
74.51㎡土地面積
93.59㎡| 物件名称 | 大和市西鶴間第24 1号棟 |
|---|---|
| 価格 | 4380万円 |
| 所在地 | 神奈川県大和市西鶴間2丁目 |
| 交通 | 小田急江ノ島線 鶴間駅 徒歩 11分 小田急江ノ島線 南林間駅 徒歩 12分 |
| 間取り | 2LDK+S(納戸) |
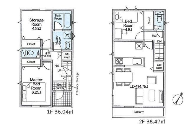
| 部屋 | 2F LDK 14.7帖 、2F 洋 4.5帖 、1F 洋 6.2帖 、1F S(納戸) 4.8帖 |
| 建物面積 | 74.51㎡ |
| 土地面積 | 93.59㎡[公簿] |
| 地目 | 宅地 |
| 土地権利 | 所有権 |
| 築年月 | 2026年06月予定 |
| 建物構造 | 木造(W) |
| 建物階建 | 2階建(地下0階) |
| 建物向き | 南 |
| 総戸数/販売戸数 | 2戸 |
| 駐車場 | あり 2台 敷地内 カースペース |
|---|---|
| 建築確認番号 | 第KBI-SGM26-10-0055号 |
| 設備・条件 | システムキッチンシャンプードレッサー追い焚きカウンターキッチンオートバス温水洗浄便座浴室乾燥機給湯洗面化粧台シューズボックス床下収納全居室収納フローリングTVドアホンバルコニー防犯カメラ設計住宅性能評価付免震耐震ガス:都市ガスコンロ:ガス、三口汚水:公共下水(使用可)雑排水:公共下水(使用可)水道:公営水道(使用可)洗濯機置場:室内トイレ:専用 |
| 都市計画 | 市街化区域 |
| 用途地域 | 第一種低層住居専用地域 |
| 建ぺい率/容積率 | 50%/80% |
| 国土法の届出 | 不要 |
| セットバック | なし |
| 私道負担 | なし |
| 接道状況 | 一方 南東:幅員4.0m公道 |
| 引渡時期 | 相談 |
| 学区 | 大和市立西鶴間小学校 約260m 大和市立南林間中学校 約1480m |
| 物件情報更新日 | 2026年03月27日(物件情報更新日より14日以内に更新) |
| 物件コード | 8254 |
| 取引態様 | 仲介 |
この物件のお問い合わせ先
アメニティハウス株式会社 湘南台店
お電話でのお問い合わせ
0466-47-2885
〒252-0804
神奈川県藤沢市湘南台2丁目7-12 門倉第2湘南台ビル2F
- [ TEL ]
- 0466-47-2885
- [ FAX ]
- 0466-47-2886
- [ 営業時間 ]
- 9:00~18:00
- [ 定休日 ]
- 毎週水曜日
- [ アクセス ]
- 湘南台駅西口より徒歩3分。駅からお電話をいただければお迎えにまいります。駐車場は弊社近くのイルカパーキングやコインパーキングをご利用下さい。
- 一部、完成後1年以上を経過した未入居物件が新築物件として掲載される場合がございます。
- 敷地権利が定期借地権のものは価格に権利金を含みます。
- 完成予想図はいずれも外構、植栽、外観等実際のものとは多少異なる場合がございます。
- CG合成の画像の場合、実際とは多少異なる場合がございます。
- 図面と現況が異なる場合には現況を優先いたします。
- 地積、建物床面積、仕様に変更が生じる場合がございます。
- 物件情報は最新のものをご提供させていただきますが、万一売約済の場合はご容赦ください。
- 建築条件付土地の販売は、売買契約後一定期間内に売主との間で建築請負契約を結ぶことが条件となり、この期間内に建築請負契約が成立しない場合は、受領金を全額返済した上で土地売買契約は白紙となります。
- 掲載物件の取引態様が「仲介」「一般」「専属」「専任」となっているものは、ご成約の際に規定の手数料及びそれに係わる消費税を別途申し受けます。
- 間取り表示のSはサービスルーム(納戸)の略称です。WICはウォークインクローゼット、DENは書斎の略称です。
- 参考プランは、土地の購入者の設計プランの参考に資するための一例であって、参考プランを採用するか否かは土地購入者の自由な判断に委ねられます。


