お知らせ
一覧へ- 会社情報
物件検索
Search新着物件
New estate売買物件
- 中古マンション
下鶴間 鶴間駅 徒歩 13分 3748万円
階数 間取り 面積 価格 検討中 地上9階 3LDK 77.68㎡ 3748万円 {{buttonLabel}} - 中古マンション
大鋸3丁目 藤沢駅 バス 10分 4280万円
階数 間取り 面積 価格 検討中 地上2階 3LDK 75.12㎡ 4280万円 {{buttonLabel}} 面積 建ぺい率 容積率 価格 検討中 94.75㎡ 60% 200% 3590万円 {{buttonLabel}}
価格変更物件
Price changed estate売買物件
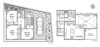
間取り 面積 価格 検討中 4LDK 土地 127.38㎡
建物 102.26㎡4699万円DOWN {{buttonLabel}} - 中古マンション
大庭 善行駅 バス 9分 2398万円
階数 間取り 面積 価格 検討中 地上2階 3LDK 65.14㎡ 2398万円DOWN {{buttonLabel}} - 新築一戸建て
大庭 善行駅 徒歩 18分 5399万円
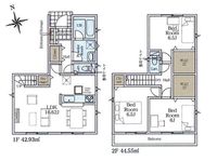
間取り 面積 価格 検討中 3LDK+S(納戸) 土地 133㎡
建物 107.31㎡5399万円DOWN {{buttonLabel}}
現地見学会物件
Openhouse estate売買物件
- 中古マンション
下鶴間 鶴間駅 徒歩 13分 3748万円
階数 間取り 面積 価格 検討中 地上9階 3LDK 77.68㎡ 3748万円 {{buttonLabel}} - 中古マンション
大鋸3丁目 藤沢駅 バス 10分 4280万円
階数 間取り 面積 価格 検討中 地上2階 3LDK 75.12㎡ 4280万円 {{buttonLabel}} 面積 建ぺい率 容積率 価格 検討中 94.75㎡ 60% 200% 3590万円 {{buttonLabel}}




