横浜市泉区新橋町4期 2号棟
新築一戸建て
閲覧済み
新橋町 緑園都市駅 徒歩 11分 6290万円
- おすすめ
- NEW
- 価格変更
- 会員限定
所在地
神奈川県横浜市泉区新橋町交通
相鉄いずみ野線 緑園都市駅 徒歩 11分相鉄本線 希望ヶ丘駅 徒歩 39分
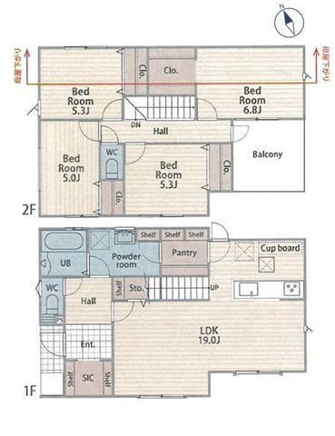
間取り
4LDK築年月
2025年11月完成建物面積
109.3㎡土地面積
179.25㎡現地見学会開催スケジュール
開催日
2025年10月05日〜2026年10月05日時間
10:00〜17:00受付場所
-備考
現地案内会 公開中 事前に必ず予約してください
- 外観

- 間取図/区画図
- 【全2棟!緑園都市駅徒歩11分!カースペース3台可!】食洗機やミラブルzeroなど設備充実WIC、SIC、パントリーなどに加え全居室収納スペースあり!
新橋町 緑園都市駅 徒歩 11分 6290万円
所在地
神奈川県横浜市泉区新橋町交通
相鉄いずみ野線 緑園都市駅 徒歩 11分相鉄本線 希望ヶ丘駅 徒歩 39分
間取り
4LDK築年月
2025年11月完成建物面積
109.3㎡土地面積
179.25㎡| 物件名称 | 横浜市泉区新橋町4期 2号棟 |
|---|---|
| 価格 | 6290万円 |
| 所在地 | 神奈川県横浜市泉区新橋町 |
| 交通 | 相鉄いずみ野線 緑園都市駅 徒歩 11分 相鉄本線 希望ヶ丘駅 徒歩 39分 |
| 間取り | 4LDK |
| 部屋 | 1F LDK 19.0帖 、2F 洋 6.8帖 、2F 洋 5.3帖 、2F 洋 5.3帖 、2F 洋 5.0帖 |
| 建物面積 | 109.3㎡ |
| 土地面積 | 179.25㎡ |
| 地目 | 宅地 |
| 土地権利 | 所有権 |
| 築年月 | 2025年11月完成 |
| 建物構造 | 木造(W) |
| 建物階建 | 2階建(地下0階) |
| 建物向き | 南 |
| 総戸数/販売戸数 | 2戸 |
| 駐車場 | あり 3台 敷地内 カースペース |
|---|---|
| 建築確認番号 | 第2025SBC-確00529Y号 |
| 設備・条件 | システムキッチンシャンプードレッサー追い焚きカウンターキッチンオートバス温水洗浄便座浴室乾燥機食器洗乾燥機給湯洗面化粧台ウォークインクローゼット床下収納全居室収納フローリングTVドアホンバルコニーガス:都市ガスコンロ:ガス、三口汚水:公共下水(使用可)雑排水:公共下水(使用可)水道:公営水道(使用可)洗濯機置場:室内トイレ:専用 |
| 都市計画 | 市街化区域 |
| 用途地域 | 第一種低層住居専用地域 |
| 建ぺい率/容積率 | 50%/80% |
| 国土法の届出 | 不要 |
| セットバック | なし |
| 私道負担 | なし |
| 接道状況 | 一方 西:幅員6.5m公道 |
| 引渡時期 | 相談 |
| 学区 | 横浜市立新橋小学校 約920m 横浜市立緑園義務教育学校中学校 約1560m |
| 物件情報更新日 | 2025年11月16日(物件情報更新日より14日以内に更新) |
| 物件コード | 7198 |
| 取引態様 | 仲介 |
この物件のお問い合わせ先
アメニティハウス株式会社 湘南台店
お電話でのお問い合わせ
0466-47-2885
〒252-0804
神奈川県藤沢市湘南台2丁目7-12 門倉第2湘南台ビル2F
- [ TEL ]
- 0466-47-2885
- [ FAX ]
- 0466-47-2886
- [ 営業時間 ]
- 9:00~18:00
- [ 定休日 ]
- 毎週水曜日
- [ アクセス ]
- 湘南台駅西口より徒歩3分。駅からお電話をいただければお迎えにまいります。駐車場は弊社近くのイルカパーキングやコインパーキングをご利用下さい。
- 一部、完成後1年以上を経過した未入居物件が新築物件として掲載される場合がございます。
- 敷地権利が定期借地権のものは価格に権利金を含みます。
- 完成予想図はいずれも外構、植栽、外観等実際のものとは多少異なる場合がございます。
- CG合成の画像の場合、実際とは多少異なる場合がございます。
- 図面と現況が異なる場合には現況を優先いたします。
- 地積、建物床面積、仕様に変更が生じる場合がございます。
- 物件情報は最新のものをご提供させていただきますが、万一売約済の場合はご容赦ください。
- 建築条件付土地の販売は、売買契約後一定期間内に売主との間で建築請負契約を結ぶことが条件となり、この期間内に建築請負契約が成立しない場合は、受領金を全額返済した上で土地売買契約は白紙となります。
- 掲載物件の取引態様が「仲介」「一般」「専属」「専任」となっているものは、ご成約の際に規定の手数料及びそれに係わる消費税を別途申し受けます。
- 間取り表示のSはサービスルーム(納戸)の略称です。WICはウォークインクローゼット、DENは書斎の略称です。
- 参考プランは、土地の購入者の設計プランの参考に資するための一例であって、参考プランを採用するか否かは土地購入者の自由な判断に委ねられます。


